Welcome
About Toyama
Monozukuri Center
History of Toyama
New Factory Build
Customer Base
Hard X-ray Beam
Soft X-ray Beam
Hard X-ray Mono
Soft X-ray Mono
Mirrors
KB Mirrors
Frontends
XFEL
News and Events
Downloads
Links
Contact
Synchrotron Beamlines
>Front End Components
>High Heat Load
Graphite Filter
Mask and Absorber
XY Slit
>Standard
Alignment Filter
Graphite Filter
Penetration Pipe
Screen Monitor
>Beamline Components
>Slits
2 Jaw Slits
4 Jaw Slits
>Mirrors
Mirror Bender FMP1000-A
Mirror Bender Systems
Mirror Chambers
Monitors
Filter
>Monochromators
>Hard X-Ray
DCM
Compact DCM
Channel Cut
>Soft X-Ray
VLSPGM
SGM
NIM
>End Stations
Ellipsometers
>Reflectometers
Hard X-ray
Soft X-ray
>Diffractometers
RASOR
SPring-8 Diffractometer
TACoDE
X-ray Lithography
Multilayer Polarimeter
>Complete Beamlines
>BOREAS BL29 at ALBA
Overview
Monochromator
Mirror Chamber
Entrance and Exit slits
2WS and 4WS slits
NewSUBARU
SPring-8 BL17SU
HISOR
UVSOR
Hard X-Ray
XFEL Components
>Monochromators
XFEL DCM
>Mirror systems
XFEL Mirrors
>Beam Monitors
Current Monitor
RF Beam Position Monitor
Beam Profile Monitor
Energy Slits
>Complete Beamlines
SACLA BL-3
Analytical Instruments
>Surface analysis
KNTOF-1800
FIB-TOF-SIMS
>Environmental analysis
Jet-REMPI
LICA-MS
RTM-MS
Outgas analyzer
>STXM
STXM
>Electron time-of-flight
eTOF
Accelerator Components
>Beam Monitors
J-PARC Linac
J-PARC Beam Transport
>Ion Sources
H Scource
>RF Quadrupole
RFQ
>Septum Magnets
J-PARC Injection
J-PARC Extraction Low Magnetic Field
J-PARC Extraction Middle Magnetic Field
Thin Film Deposition
>Ion Beam Systems
Ion Beam Sputtering
>RF Magnetron Sputtering
RF Magnetron
>NFTS
NFTS
Semiconductor Technology
>Surface Analysis tools
Surface Analysis tools
>EUV Optical system
EUV Optical system
>Probing Systems
Vacuum Chambers
>Permalloy Chambers
Permalloy Chambers
Vacuum Components
>Linear Motion
LM034
LM070
LM034-m/LM070-m
>Magnetic Coupling
MC034
>Rotary Motion
RM034
>Rotary Manipulator
MR070
>Manipulators
TM series
TMZ series
UHV Manipulator
High Precision Manipulator
Special projects
>Examples
Examples
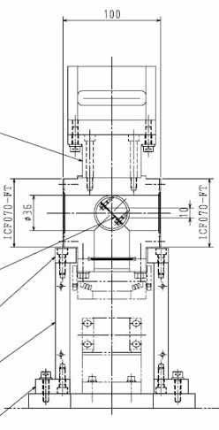
XFEL Beam Profile Monitor
Features
|
Drawing
|
Photos
Drawings
Click on the picture above
to open the full drawing
Click on the picture above
to open the full drawing
© 2011-2026 TOYAMA Co.,Ltd.
|
Sitemap
|
Privacy
Japanese
|
Back to top
|
Print this page