BOREAS Beamline
Beamline | Monochromator | Mirror Chamber | Entrance and Exit Slits| 2WS and 4WS Slits
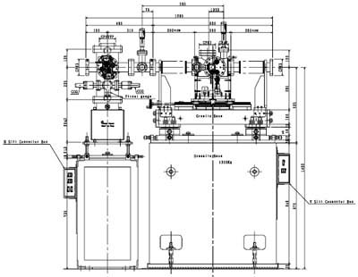
BOREAS Entrance and Exit Slit Systems
Photos | Specification | Drawing
Beamline | Monochromator | Mirror Chamber | Entrance and Exit Slits| 2WS and 4WS Slits
Photos | Specification | Drawing
